Skip to Content
会议
会议室详情
大宴会厅I & II & III
会议室详情
会议服务
索取会议资讯
您正在查看:
会议室概况
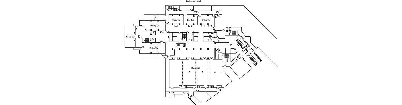
平面图
会议室概况
平面图
会议室概况
规模
5231 平方英尺 | 486 平方米
会议室规格
89 x 59 英尺 | 27 x 18 仪表
水晶灯高度
6 仪表 | 20 英尺
座位容量
10人宴会桌
250
招待会
380
会议
0
课桌式
255
U型
115
剧院式
400
布料和软装
墙纸
真丝板木墙
楼层
地毯
采光
水晶吊灯
其他
悬挂点/数
0
电源数
12
最近装修日期
2007
窗户数量
0
入口/出口数量
6